123WebImmo Logo
  • Vos agences
  • Estimation
  • Nous rejoindre
  • Vous vendez
  • Le Blog 123
Retour

Appartement 100.74 m² à Verdun 55100

  • Partager avec LinkedIn
  • Partager avec WhatsApp
  • Partager avec Pinterest
  • Partager avec Twitter
  • Partager avec Facebook
  • Photo 1 - Verdun 55100 à Verdun
  • Photo 2 - Verdun 55100 à Verdun
  • Photo 3 - Verdun 55100 à Verdun
  • Photo 4 - Verdun 55100 à Verdun
  • Photo 5 - Verdun 55100 à Verdun
  • Photo 6 - Verdun 55100 à Verdun
  • Photo 7 - Verdun 55100 à Verdun
  • Photo 8 - Verdun 55100 à Verdun

102 000 €

Les honoraires sont à la charge du vendeur.

Référence : 55186_55_360

Demande d'information Fiche du bien

Résumé

Appartement de 100m², situé à VERDUN

Description

Situé à quelques minutes du centre-ville et de toutes les commodités nécessaires, cet appartement entièrement rénové est une opportunité idéale pour un investisseur ou pour y vivre.

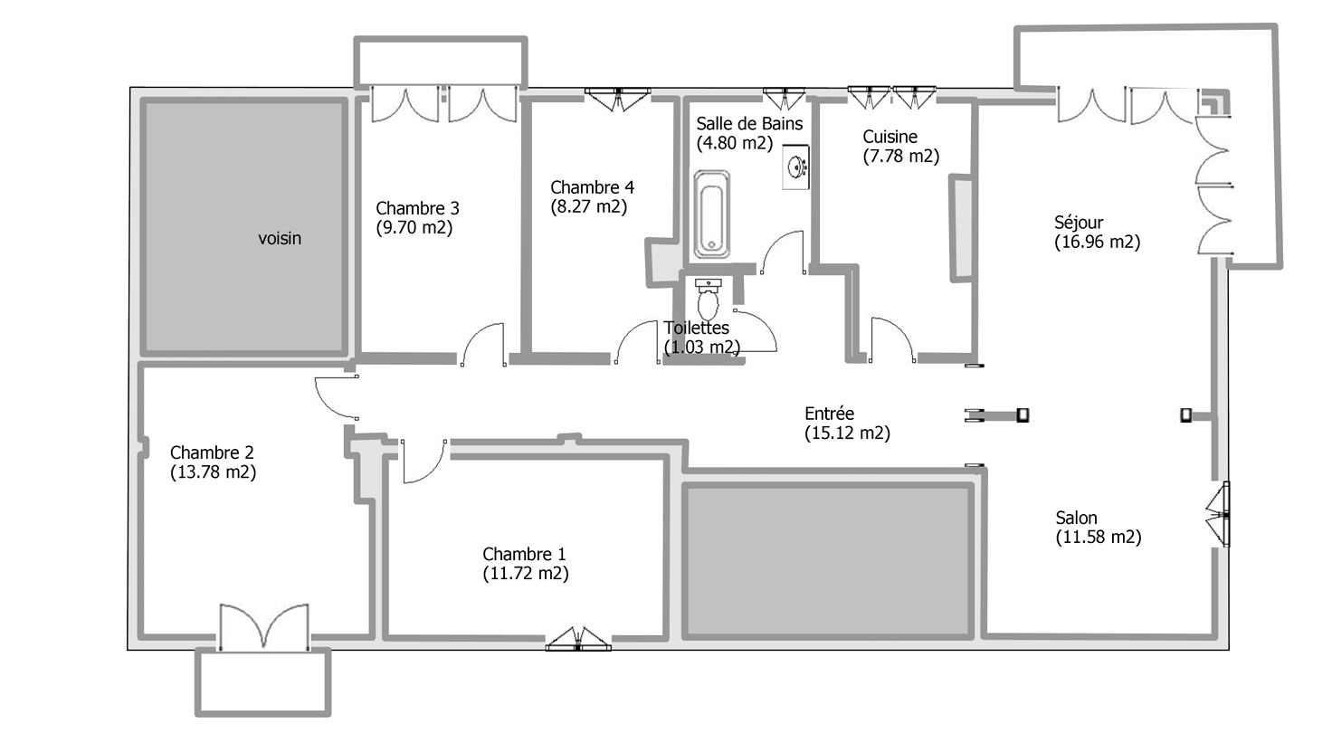
L'appartement, situé au 2ème étage, offre une superficie d'environ 100m² et un agencement pratique. Il se compose; D'une entrée, d'une cuisine semi équipée, d'un vaste salon-séjour lumineux de 28.5m² avec balcon , trois chambres, un bureau , une salle de bain ainsi qu'un WC séparé.
Une cave de 10m² privative complète ce bien.

Le chauffage est collectif au gaz avec répartiteurs individuels.
Aucune procédure en cours au niveau de la copropriété.

Pour plus d'informations contactez moi au 0664857655

Les informations sur les risques auxquels ce bien est exposé sont disponibles sur le site du gouvernement : https://www.georisques.gouv.fr

Général

  • Exposition Nord
  • Nombre de WC : 1
  • 100.74 m² habitables

Détails

  • Entrée - 15 m²
  • Séjour/Salon - 28.5 m²
  • Cuisine - 7.7 m²
  • Salle de bain - 4.8 m²
  • Chambre 1 - 11.7 m²
  • Chambre 2 - 13.7 m²
  • Chambre 3 - 9.7 m²
  • Bureau - 8.2 m²
  • WC séparé - 1 m²
  • Cave privative - 10 m²
  • Disposition en T4

Chauffage /Climatisation

  • Chauffage Collectif
  • Chauffage au gaz naturel
  • Émetteur : Radiateur à eau

Prestations

  • Porte classique
  • Au dernier étage
  • Résidence fermée
  • Interphone

CO-PROPRIÉTÉ

  • Nombre de lots : 23

Environnement

  • Gare à 1,3 km
  • Bus à 100 m
  • Crèche à 1,2 km
  • École Maternelle à 1,2 km
  • École primaire à 1,2 km
  • Collège à 1,5 km
  • Lycée à 1,6 km
  • Centre à 1 km

Taxes et charges

  • Taxe foncière : 907 €
  • Nombre de lots co-propriété : 80
  • Quote-part annuelle : 1 500 €
Voir les barèmes de l'agence

Théo CHANGEAT

Téléphone mobile : 06 64 85 76 55

Email : theo.changeat@123webimmo.com

Agence de Verdun

Demande d’information

Diagnostics

Diagnostic de performance énergétique (DPE) :

205
200 kWh/m2.an d'énergie finale
*
DPE D

Date de réalisation du DPE : 13/09/2023

Montant minimum estimé des dépenses annuelles d’énergie pour un usage standard : 1 140,00 €

Montant maximum estimé des dépenses annuelles d’énergie pour un usage standard : 1 580,00 €

Localisation

  • Select Neuf
  • La Centrale de Financement
  • Medimmoconso - Médiateur de consommation
Siège social 123WebImmo
SAS SOVALIM
547 quai des Moulins
34200 Sète

Tél.: 04 66 27 01 23

  • Qui sommes-nous
  • Contactez-nous

Découvrez les dernières actualités 123webimmo

Le Blog 123
  • Linkedin
  • Facebook
  • Instagram

©2025, 123Webimmo. Tous droits réservés

  • Mentions légales
Made by spiriit - Agence Digitale, Stratégie & Développement Web à Montpellier et Lyon
  • Vos agences
  • Estimation
  • Nous rejoindre
  • Vous vendez
  • Le Blog 123