123WebImmo Logo
  • Vos agences
  • Estimation
  • Nous rejoindre
  • Vous vendez
  • Le Blog 123
Retour

Appartement 76 m² à Ugine 73400

  • Partager avec LinkedIn
  • Partager avec WhatsApp
  • Partager avec Pinterest
  • Partager avec Twitter
  • Partager avec Facebook
  • Photo 1 - Ugine 73400 à Ugine
    Découvrez cette nouvelle résidence, composée d’appartements allant du T2 au T4.
  • Photo 2 - Ugine 73400 à Ugine
    Tous les logements disposent d’un espace extérieur et pour votre confort, un parking sécurisé ainsi qu’un local à vélos sont disponibles.
  • Photo 3 - Ugine 73400 à Ugine
    Pour plus de renseignements contactez-nous.
  • Photo 4 - Ugine 73400 à Ugine
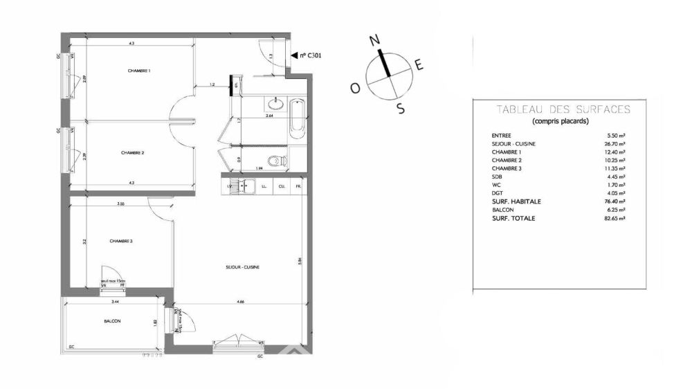
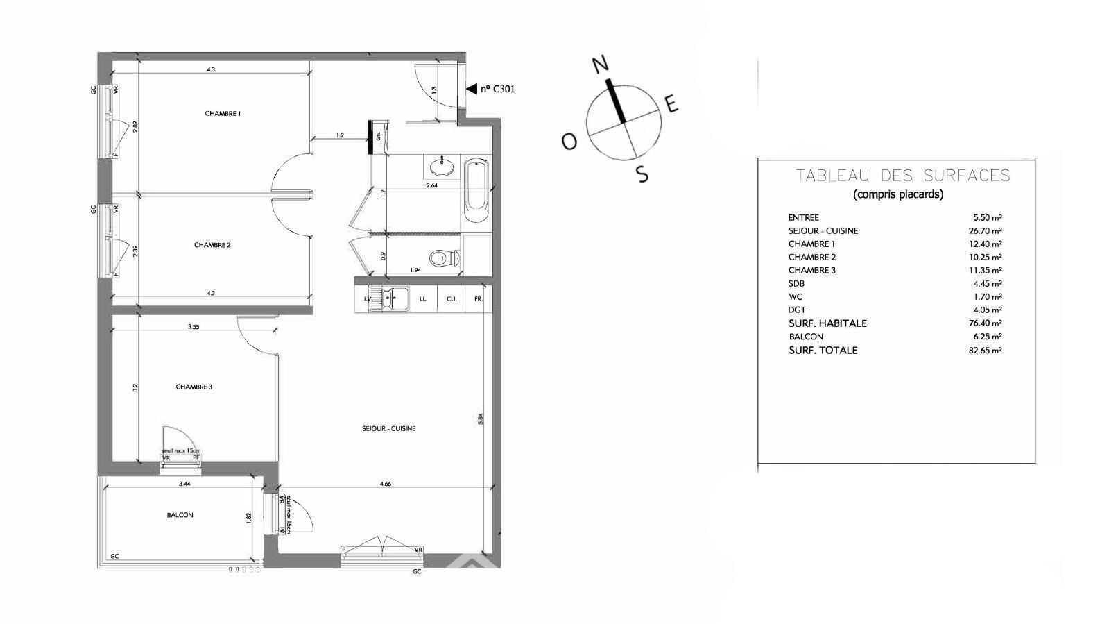
    Disposition du lot présenté
  • Photo 5 - Ugine 73400 à Ugine
  • Photo 6 - Ugine 73400 à Ugine
  • Photo 7 - Ugine 73400 à Ugine

280 800 €

Les honoraires sont à la charge du vendeur.

Référence : 55294_73_51

Demande d'information Fiche du bien

Résumé

BIENTÔT à UGINE, proche des écoles !!! Dans la Résidence Horizon,T4 de 76 m² avec balcon.

Points clés

  • Ascenseur
  • Balcon
  • Frais réduits

Description

Situé au 3ème et dernier étage de la résidence sécurisée avec ascenseur, ce T4 exposé sud vous propose un hall d'entrée avec placard, une belle pièce de vie avec cuisine ouverte qui offre l'accès sur un balcon, 3 chambres et une salle de bain. Le bien dispose de stationnement.
Date de livraison prévue le 3ème trimestre 2027.
Ce bien est éligible au prêt à taux 0% et aux frais de notaire réduit.
Seulement 3 lots de ce type sont disponibles.
Pour plus de renseignements contactez-nous.

Les informations sur les risques auxquels ce bien est exposé sont disponibles sur le site du gouvernement : https://www.georisques.gouv.fr

Général

  • Exposition Sud
  • Construit en 2027
  • 76 m² habitables

Détails

  • Cuisine/séjour - 26.7 m²
  • Salle de bain - 4.45 m²
  • Hall/Entrée - 5.5 m²
  • Balcon - 6.25 m²
  • Chambre - 11.35 m²
  • Chambre - 10.25 m²
  • Chambre - 12.4 m²
  • Disposition en T4

Chauffage /Climatisation

  • Chauffage Urbain
  • Chauffage au bois
  • Émetteur : Radiateur à eau

Prestations

  • Porte classique
  • Fermeture à volet roulant manuel
  • Étage: 3
  • Au dernier étage
  • Résidence fermée
  • Interphone

CO-PROPRIÉTÉ

  • Nombre de bâtiments : 3
  • Nombre de lots : 29
  • Nombre d'étages : 3

Taxes et charges

  • Nombre de lots co-propriété : 64
  • Quote-part annuelle : 1 €
Voir les barèmes de l'agence

Olivier GUILLAND

Téléphone mobile : 06 68 48 21 72

Téléphone bureau : 04 79 38 75 62

Email : olivier.guilland@123webimmo.com

Agence d'Ugine

Demande d’information

Diagnostics

Diagnostic de performance énergétique (DPE) :

Non soumis au DPE

Localisation

  • Select Neuf
  • La Centrale de Financement
  • Medimmoconso - Médiateur de consommation
Siège social 123WebImmo
SAS SOVALIM
547 quai des Moulins
34200 Sète

Tél.: 04 66 27 01 23

  • Qui sommes-nous
  • Contactez-nous

Découvrez les dernières actualités 123webimmo

Le Blog 123
  • Linkedin
  • Facebook
  • Instagram

©2025, 123Webimmo. Tous droits réservés

  • Mentions légales
Made by spiriit - Agence Digitale, Stratégie & Développement Web à Montpellier et Lyon
  • Vos agences
  • Estimation
  • Nous rejoindre
  • Vous vendez
  • Le Blog 123