123WebImmo Logo
  • Vos agences
  • Estimation
  • Nous rejoindre
  • Vous vendez
  • Le Blog 123
Retour

Appartement 85 m² à Poitiers 86000

  • Partager avec LinkedIn
  • Partager avec WhatsApp
  • Partager avec Pinterest
  • Partager avec Twitter
  • Partager avec Facebook
  • Photo 1 - Poitiers 86000 à Poitiers
    Au pied du centre-ville et de la gare, T4 de 85 m2 habitables.
  • Photo 2 - Poitiers 86000 à Poitiers
    Dans une résidence sécurisée avec interphone,
  • Photo 3 - Poitiers 86000 à Poitiers
    La hall d'entrée,
  • Photo 4 - Poitiers 86000 à Poitiers
    Donne accès aux différents niveaux.
  • Photo 5 - Poitiers 86000 à Poitiers
    Le palier du 1er étage dessert l'appartement.
  • Photo 6 - Poitiers 86000 à Poitiers
    L'entrée avec WC distribue d'un côté :
  • Photo 7 - Poitiers 86000 à Poitiers
    2 chambres,
  • Photo 8 - Poitiers 86000 à Poitiers
    (Proposition virtuelle 3D d'aménagement)
  • Photo 9 - Poitiers 86000 à Poitiers
    De 13 et 17 m2,
  • Photo 10 - Poitiers 86000 à Poitiers
    De l'autre côté, la cuisine (espace repas possible),
  • Photo 11 - Poitiers 86000 à Poitiers
    Et attenante,
  • Photo 12 - Poitiers 86000 à Poitiers
    La salle d'eau.
  • Photo 13 - Poitiers 86000 à Poitiers
    Au-delà de la cuisine (décloisonnable),
  • Photo 14 - Poitiers 86000 à Poitiers
    2 pièces de 13 et 18 m2,
  • Photo 15 - Poitiers 86000 à Poitiers
    Dont 1 chambre et le salon-séjour (au souhait de chacun)
  • Photo 16 - Poitiers 86000 à Poitiers
    Proposition virtuelle 3D d'aménagement.
  • Photo 17 - Poitiers 86000 à Poitiers
    Croquis.
  • Photo 18 - Poitiers 86000 à Poitiers
    Un investissement judicieux à proximité de tout !

97 900 €

Les honoraires sont à la charge du vendeur.

Référence : 50792_86_137

Demande d'information Avant/Après Fiche du bien

Résumé

Appartement type T4 à rénover (clés en main possible), 85 m2 habitables. A 10 min à pied du centre-ville et de la gare.

Points clés

  • Double vitrage
  • Surface
  • Lumineux

Description

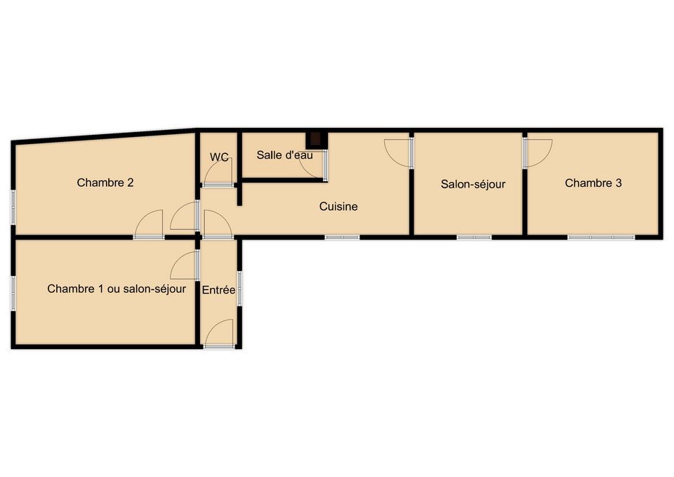
86000 Poitiers, avenue de Paris. Proximité de toutes commodités et écoles. Au 1er étage d'un immeuble rénové : façade, communs repeints, réfection de couverture (pose d'un portail et porte d'entrée sécurisée à venir). Entrée, salon-séjour, cuisine, 3 chambres de 13 m2 à 18 m2, salle d'eau, WC séparé. "Possibilité de séparer en 2 lots d'environ 40 m2 chacun". Huisseries double vitrage, chauffage électrique individuel, stationnement disponible en location. Travaux à prévoir : cuisine, salle d'eau, électricité, sols, peinture, radiateurs (possibilité d'accompagnement pour déficit foncier et de crédit d'impôt). Syndic en cours de création. Proche de tout. Un investissement malin !
Les informations sur les risques auxquels ce bien est exposé sont disponibles sur le site du gouvernement : https://www.georisques.gouv.fr

Général

  • Exposition Nord
  • Nombre de WC : 1
  • Construit en 1900
  • 85 m² habitables

Détails

  • Hall/Entrée - 5 m²
  • Cuisine-salon/séjour - 26 m²
  • Chambre 1 - 17 m²
  • Chambre 2 - 13 m²
  • Chambre - 18 m²
  • Salle de douche - 3 m²
  • WC - 2 m²
  • Disposition en T4

Prestations

  • Porte classique
  • Étage: 1
  • Résidence fermée
  • Interphone

CO-PROPRIÉTÉ

  • Nombre de bâtiments : 1
  • Nombre de lots : 7
  • Nombre d'étages : 2

Taxes et charges

  • Nombre de lots co-propriété : 7
  • Quote-part annuelle : 1 200 €
Voir les barèmes de l'agence

Anthony CHAMBAUDRY

Téléphone bureau : 05 49 52 01 23

Email : poitiers@123webimmo.com

Agence Poitiers et Grand-Poitiers

Agent Commercial EI | RSAC : 928 689 066
Ce bien est vendu.

Diagnostics

Diagnostic de performance énergétique (DPE) :

481
kWh/m2.an d'énergie finale
16*
DPE G

Logement à consommation énergétique excessive

Date de réalisation du DPE : 27/11/2023

Montant minimum estimé des dépenses annuelles d’énergie pour un usage standard : 2 200,00 €

Montant maximum estimé des dépenses annuelles d’énergie pour un usage standard : 3 100,00 €

Année de référence des prix de l'énergie : 2021

Indice d'émission de gaz à effet de serre (GES) :

16
DPE C

Localisation

  • Select Neuf
  • La Centrale de Financement
  • Medimmoconso - Médiateur de consommation
Siège social 123WebImmo
SAS SOVALIM
547 quai des Moulins
34200 Sète

Tél.: 04 66 27 01 23

  • Qui sommes-nous
  • Contactez-nous

Découvrez les dernières actualités 123webimmo

Le Blog 123
  • Linkedin
  • Facebook
  • Instagram

©2025, 123Webimmo. Tous droits réservés

  • Mentions légales
Made by spiriit - Agence Digitale, Stratégie & Développement Web à Montpellier et Lyon
  • Vos agences
  • Estimation
  • Nous rejoindre
  • Vous vendez
  • Le Blog 123