123WebImmo Logo
  • Vos agences
  • Estimation
  • Nous rejoindre
  • Vous vendez
  • Le Blog 123
Retour

Maison 49 m² à Agde 34300

  • Partager avec LinkedIn
  • Partager avec WhatsApp
  • Partager avec Pinterest
  • Partager avec Twitter
  • Partager avec Facebook
  • Photo 1 - Agde 34300 à Agde
    22 m² avec barbecue, pour profiter de l'extérieur toute l'année
  • Photo 2 - Agde 34300 à Agde
    Mitoyenne d'un seul côté, on accède à cette maison par le vaste parking privé de la copropriété (8 habitations)
  • Photo 3 - Agde 34300 à Agde
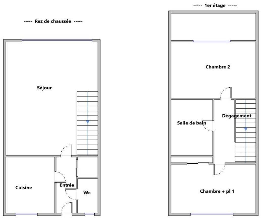
    Un aperçu de la répartition des surfaces
  • Photo 4 - Agde 34300 à Agde
    Le hall d'entrée dessert la cuisine à gauche, le WC à droite
  • Photo 5 - Agde 34300 à Agde
    Séjour et cuisine pourront être décloisonnés pour obtenir un espace ouvert de plus de 20 m²
  • Photo 6 - Agde 34300 à Agde
    Une grande baie vitrée au sud chauffera la pièce principale en hiver
  • Photo 7 - Agde 34300 à Agde
    Revenons vers la cuisine aménagée...
  • Photo 8 - Agde 34300 à Agde
    ...munie de nombreux rangements
  • Photo 9 - Agde 34300 à Agde
    L'accès à l'étage, avec placard et rangement sous escalier...
  • Photo 10 - Agde 34300 à Agde
    ...le dégagement de la partie nuit
  • Photo 11 - Agde 34300 à Agde
    La chambre 1 avec penderie fait 11 m²...
  • Photo 12 - Agde 34300 à Agde
    Fenêtre alu coulissante et volet roulant
  • Photo 13 - Agde 34300 à Agde
    La chambre au sud dispose d'une baie vitrée...
  • Photo 14 - Agde 34300 à Agde
    ...un balcon au soleil...
  • Photo 15 - Agde 34300 à Agde
    ...une vue dégagée...
  • Photo 16 - Agde 34300 à Agde
    ...dominant votre extérieur à aménager à votre goût
  • Photo 17 - Agde 34300 à Agde
    La salle de bain complète l'étage
  • Photo 18 - Agde 34300 à Agde
    Côté entrée, une remise à vélo ou poussette
  • Photo 19 - Agde 34300 à Agde
    Taxe foncière 892 € - Charges courantes 29 €/mois - Compteur d'eau individuel - Cumulus 2022 - Un rafraîchissement sols et murs personnalisera votre nouveau foyer et lui donnera tout son potentiel

155 000 €

Les honoraires sont à la charge du vendeur.

Référence : 55833_34_363

Demande d'information Visite virtuelle Fiche du bien

Résumé

Secteur Mairie - Votre maison T3 avec jardin/terrasse et parking au prix d'un appartement !

Description

🏡 Proche Mairie, écoles et transports – Maison T3 en duplex avec terrasse au sud et parking

📍 Dans un quartier calme, facilement accessible depuis la route de Sète, cette maison construite en 1977 sur 3 faces libres se situe à deux pas des écoles et des transports.

🌿 Extérieur agréable : un jardin avec terrasse exposée plein sud de 22 m², une petite terrasse attenante à la chambre principale, et un cellier pour vélos 🚲 ou rangement.

✨ Intérieur modulable : le séjour et la cuisine 🍴 peuvent être facilement réunis pour créer un bel espace de vie traversant de plus de 20 m², lumineux ☀️ et ouvert sur l’extérieur grâce à une grande baie vitrée.

🛏️ À l'étage : deux chambres séparées par une salle de bains 🛁, dont une avec placard intégré et accès à une terrasse privative 🌸.

🚗 Stationnement facile : copropriété de 8 logements avec parking privatif collectif et charges réduites (27 €/mois).

💰 Atout financier : un bien idéal pour un premier achat ou un investissement locatif (valeur locative estimée à environ 650 €/mois avec parking).

📸 Découvrez ce bien en détail grâce aux photos commentées et à la visite virtuelle à 360° 🎥 sur 123WEBIMMO AGDE.

🔑 Exclusivité 123WEBIMMO à saisir

ℹ️ Informations sur les risques disponibles sur 👉 georisques.gouv.fr

Général

  • Exposition Sud
  • Nombre de WC : 1
  • Construit en 1977
  • 49 m² habitables
  • 52 m² de terrain
  • Nombre de niveaux : 1
  • 3 pièces

Détails

  • Entrée - 2 m²
  • Séjour et salle à manger - 15 m²
  • Cuisine décloisonnable - 5 m²
  • WC séparé - 1 m²
  • 2 placards - 1.2 m²
  • Dégagement étage - 2.2 m²
  • Chambre 1 - 11 m²
  • Chambre 2 avec extérieur - 9 m²
  • Salle de bain - 3 m²
  • Jardin privatif au sud - 22 m²
  • Terrasse au sud - 4 m²
  • Remise vélos - 3 m²

Chauffage /Climatisation

  • Chauffage Individuel
  • Chauffage à l'électricité
  • Émetteurs : convecteurs

Prestations

  • Porte à multipoints
  • Fermeture à volet roulant manuel

Taxes et charges

  • Taxe foncière : 892 €
  • Nombre de lots co-propriété : 8
  • Quote-part annuelle : 350 €
Voir les barèmes de l'agence

Jean DEQUEKER

Téléphone mobile : 0669651230

Email : jean.dequeker1@123webimmo.com

Agence de Grenoble Est

Agent Commercial EI | RSAC : 521589291
Ce bien est sous compromis.

Diagnostics

Diagnostic de performance énergétique (DPE) :

261
137 kWh/m2.an d'énergie finale
10*
DPE E

Date de réalisation du DPE : 21/07/2025

Montant minimum estimé des dépenses annuelles d’énergie pour un usage standard : 1 008,00 €

Montant maximum estimé des dépenses annuelles d’énergie pour un usage standard : 1 404,00 €

Année de référence des prix de l'énergie : 2023

Indice d'émission de gaz à effet de serre (GES) :

10
DPE B

Localisation

  • Select Neuf
  • La Centrale de Financement
  • Medimmoconso - Médiateur de consommation
Siège social 123WebImmo
SAS SOVALIM
547 quai des Moulins
34200 Sète

Tél.: 04 66 27 01 23

  • Qui sommes-nous
  • Contactez-nous

Découvrez les dernières actualités 123webimmo

Le Blog 123
  • Linkedin
  • Facebook
  • Instagram

©2026, 123Webimmo. Tous droits réservés

  • Mentions légales
Made by spiriit - Agence Digitale, Stratégie & Développement Web à Montpellier et Lyon
  • Vos agences
  • Estimation
  • Nous rejoindre
  • Vous vendez
  • Le Blog 123