123WebImmo Logo
  • Vos agences
  • Estimation
  • Nous rejoindre
  • Vous vendez
  • Le Blog 123
Retour

Maison 81 m² à Chasseneuil du Poitou 86360

  • Partager avec LinkedIn
  • Partager avec WhatsApp
  • Partager avec Pinterest
  • Partager avec Twitter
  • Partager avec Facebook
  • Photo 1 - Chasseneuil du Poitou 86360 à Chasseneuil du Poitou
    Une maison indépendante, sur 2 niveaux, dont un rez-de-chaussée surélevé,
  • Photo 2 - Chasseneuil du Poitou 86360 à Chasseneuil du Poitou
    Sur un sous-sol intégral semi-enterré, avec un grand garage accolé.
  • Photo 3 - Chasseneuil du Poitou 86360 à Chasseneuil du Poitou
    Entrée centrale surélevée, en pignon.
  • Photo 4 - Chasseneuil du Poitou 86360 à Chasseneuil du Poitou
    Un couloir dessert de part et d'autres :
  • Photo 5 - Chasseneuil du Poitou 86360 à Chasseneuil du Poitou
    Le séjour salon de 26 m2,
  • Photo 6 - Chasseneuil du Poitou 86360 à Chasseneuil du Poitou
    Lumineux, exposé Sud Est,
  • Photo 7 - Chasseneuil du Poitou 86360 à Chasseneuil du Poitou
    Ouvert sur le jardin,
  • Photo 8 - Chasseneuil du Poitou 86360 à Chasseneuil du Poitou
    En face, la cuisine, non aménagée.
  • Photo 9 - Chasseneuil du Poitou 86360 à Chasseneuil du Poitou
    Les 2 pièces peuvent fusionner en une pièce de vie de 40 m2.
  • Photo 10 - Chasseneuil du Poitou 86360 à Chasseneuil du Poitou
    Au-delà, un espace à optimiser comprenant un WC indépendant,
  • Photo 11 - Chasseneuil du Poitou 86360 à Chasseneuil du Poitou
    Et une salle d'eau avec cabine de douche et éclairage naturel.
  • Photo 12 - Chasseneuil du Poitou 86360 à Chasseneuil du Poitou
    A côté, 3 chambres de 9 à 13 m2,
  • Photo 13 - Chasseneuil du Poitou 86360 à Chasseneuil du Poitou
    Avec au sol, un véritable parquet massif en chêne,
  • Photo 14 - Chasseneuil du Poitou 86360 à Chasseneuil du Poitou
    Fenêtres en PVC partout, volets roulants électriques et "centralisés".
  • Photo 15 - Chasseneuil du Poitou 86360 à Chasseneuil du Poitou
    En extension de la maison, un garage de 32 m2 avec portail grande hauteur et grenier au-dessus.
  • Photo 16 - Chasseneuil du Poitou 86360 à Chasseneuil du Poitou
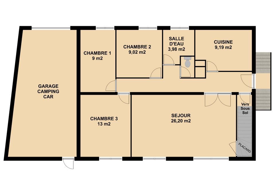
    Croquis de l'ensemble
  • Photo 17 - Chasseneuil du Poitou 86360 à Chasseneuil du Poitou
    Le sous-sol de 88 m2 comprend une vaste pièce de 70 m2,
  • Photo 18 - Chasseneuil du Poitou 86360 à Chasseneuil du Poitou
    Avec une hauteur sous plafond de plus de 1,90 m,
  • Photo 19 - Chasseneuil du Poitou 86360 à Chasseneuil du Poitou
    Une chambre d'appoint,
  • Photo 20 - Chasseneuil du Poitou 86360 à Chasseneuil du Poitou
    Une cave à vin totalement enterrée,
  • Photo 21 - Chasseneuil du Poitou 86360 à Chasseneuil du Poitou
    La chaudière au fioul âgée est à changer.
  • Photo 22 - Chasseneuil du Poitou 86360 à Chasseneuil du Poitou
    Croquis du sous-sol, hors cave et garage accolé.
  • Photo 23 - Chasseneuil du Poitou 86360 à Chasseneuil du Poitou
    La maison vue du fond du jardin.
  • Photo 24 - Chasseneuil du Poitou 86360 à Chasseneuil du Poitou
    Le terrain est totalement clos de murs et de grillages.

139 950 €

Les honoraires sont à la charge du vendeur.

Référence : 53148_86_188

Demande d'information Fiche du bien

Résumé

Maison indépendante, plain-pied surélevé, 81 m2 habitables, sous-sol aménageable, grand garage accolé sur terrain 636 m2 proche écoles.

Points clés

  • Double vitrage
  • Garage

Description

Chasseneuil-du-Poitou 86360, proche du centre bourg, des écoles, des bus, des commerces et de toutes commodités, au calme.
Une maison des années 60 avec soubassements en pierres, élévations des murs en briques, charpente traditionnelle, couverture récente, plafonds isolés, ouvertures principales récentes en PVC, vitrage 4/16/4 planitherm, avec volets roulants alu isolés, électriques et centralisés.
Entrée prolongée par un couloir distribuant l'ensemble, dont la cuisine indépendante de 9 m2 non aménagée face au séjour salon, les deux pouvant fusionner en une grande pièce de vie de 40 m2.
WC indépendant, salle d'eau avec cabine de douche, 3 chambres de 9 à 13 m2 sur parquet massif en chêne.
Sous-sol de 78 m2 aménageable et déjà partiellement aménagé avec une chambre d'appoint.
En extension, garage indépendant plus récent de 32 m2 avec grande hauteur pour camping car, grenier au-dessus et cave à vin au-dessous, accessible par le garage.
Chauffage central au fioul avec chaudière ancienne. Electricité d'origine.
Le terrain est totalement clos.
Les informations sur les risques auxquels ce bien est exposé sont disponibles sur le site du gouvernement : https://www.georisques.gouv.fr

Général

  • Exposition Est
  • Nombre de WC : 1
  • Construit en 1963
  • 81 m² habitables
  • 636 m² de terrain
  • Nombre de niveaux : 2
  • 4 pièces

Détails

  • Cuisine - 9.2 m²
  • Séjour/salon - 26 m²
  • Chambre - 13 m²
  • Chambre - 9 m²
  • Chambre - 9 m²
  • Chambre d'appoint - 10 m²
  • Garage sous-sol - 70 m²
  • Garage accolé - 32 m²

Chauffage /Climatisation

  • Mode de production : Chaudière
  • Chauffage à Fioul
  • Émetteur : Radiateur à eau

Prestations

  • Porte classique
  • Fermeture à volets électriques

Environnement

  • Gare à 300 m
  • Bus à 100 m
  • Crèche à 100 m
  • École Maternelle à 100 m
  • École primaire à 100 m
  • Collège à 3 km
  • Lycée à 3 km
  • Centre à 400 m
Voir les barèmes de l'agence

Ludwika PAQUEREAU

Téléphone bureau : 05 49 52 01 23

Email : poitiers@123webimmo.com

Agence Poitiers et Grand-Poitiers

Ce bien est vendu.

Diagnostics

Diagnostic de performance énergétique (DPE) :

266 kWh/m2.an d'énergie finale
*
DPE E

Date de réalisation du DPE : 29/03/2023

Montant minimum estimé des dépenses annuelles d’énergie pour un usage standard : 1 410,00 €

Montant maximum estimé des dépenses annuelles d’énergie pour un usage standard : 1 950,00 €

Année de référence des prix de l'énergie : 2020

Localisation

  • Select Neuf
  • La Centrale de Financement
  • Medimmoconso - Médiateur de consommation
Siège social 123WebImmo
SAS SOVALIM
547 quai des Moulins
34200 Sète

Tél.: 04 66 27 01 23

  • Qui sommes-nous
  • Contactez-nous

Découvrez les dernières actualités 123webimmo

Le Blog 123
  • Linkedin
  • Facebook
  • Instagram

©2025, 123Webimmo. Tous droits réservés

  • Mentions légales
Made by spiriit - Agence Digitale, Stratégie & Développement Web à Montpellier et Lyon
  • Vos agences
  • Estimation
  • Nous rejoindre
  • Vous vendez
  • Le Blog 123